横浜市港北区日吉【住宅展示場・モデルハウス】
- 神奈川県
- 横浜市
- ガレージのある家
- Premium House

————————————————————–
当モデルハウスでの見学会は終了いたしました。
多数のご来場、誠にありがとうございました。
————————————————————–
横浜市港北区日吉[Premium Houseシリーズ]
閑静な住宅街の中につくられたプリンシパルホームのモデルハウス「まちなかギャラリー」のご紹介です。
延べ床面積146.5㎡(地下車庫除く)、広いリビングと吹き抜け、解放感あるオープンテラス、インナーガレージ付き。
風・光・空を体感できるPremium Houseをご体感ください。
| 「街中ギャラリー」住宅展示場名 | 横浜市港北区日吉【住宅展示場・モデルハウス】 |
|---|---|
| 開催時間 | 当モデルハウスでの見学会は終了いたしました。 多数のご来場、誠にありがとうございました |
| 住所 | 神奈川県横浜市港北区日吉(地図で確認する↓) |
| 交通アクセス | |
| 駐車場 | |
| 来場・見学費用 | |
| 家づくり相談 | 可 |
| 住宅ローン相談 | 可 |
| 土地探し相談 | 可 |
| 備考1 | 建ぺい率50% 容積率100% |
| 工法 | 木造軸組工法 |
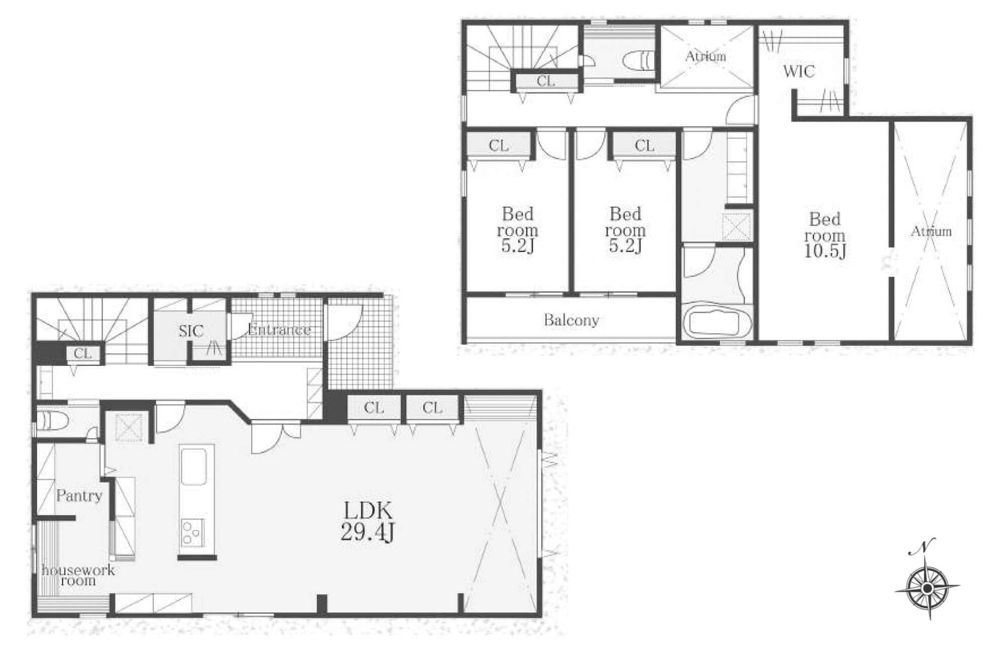
| 間取り | 3LDK |
| 延べ床面積 | 187.76㎡(地下車庫41.26㎡含む) |
-

間取り図
◎敷地面積/169.38㎡(約51.24坪)
◎1F床面積/77.42㎡(約23.46坪)
◎2F床面積/69.08㎡(約20.9坪)
◎地下車庫/41.26㎡(約12.5坪)
◎延床面積/187.76㎡(約56.8坪)※地下車庫部分41.26㎡を含む -

北欧テイストの外観、広々としたインナーガレージ、明るく開放的な吹き抜けの玄関とリビング、キッチンはチャコールグレーのアクセントカラーでシックな印象




