横浜市港北区高田東【住宅展示場・モデルハウス】
- 横浜市

————————————————————–
当モデルハウスでの見学会は終了いたしました。
多数のご来場、誠にありがとうございました。
————————————————————–
横浜市港北区【住宅展示場・モデルハウス】
閑静な住宅街の中につくられたプリンシパルホームのモデルハウス「まちなかギャラリー」のご紹介です。
たっぷり収納と快適な家事動線、生活をささえる設備も充実、実際にご見学いただきPremium Houseを是非ご体感ください。
当モデルハウス「家事楽ドライピット、WICをはじめとする収納と快適な生活を支える設備が充実」での見学会は終了いたしました。多数のご来場、誠にありがとうございました。
《注文住宅》の参考にプリンシパルホームの建物を是非ご覧ください。
| 「街中ギャラリー」住宅展示場名 | 横浜市港北区高田東【住宅展示場・モデルハウス】 |
|---|---|
| 開催時間 | 電話受付は火曜・水曜除く平日の9:30~20:00まで インターネットはフォームより24時間受付です。 |
| 住所 | 神奈川県港北区高田東(地図で確認する↓) |
| 交通アクセス | 横浜市営地下鉄グリーンライン 「高田」駅 |
| 駐車場 | 有り |
| 来場・見学費用 | 無料 |
| 家づくり相談 | 可 |
| 住宅ローン相談 | 可 |
| 土地探し相談 | 可 |
| 備考1 | 建ぺい率50% 容積率100% |
| 工法 | 木造2階建て |
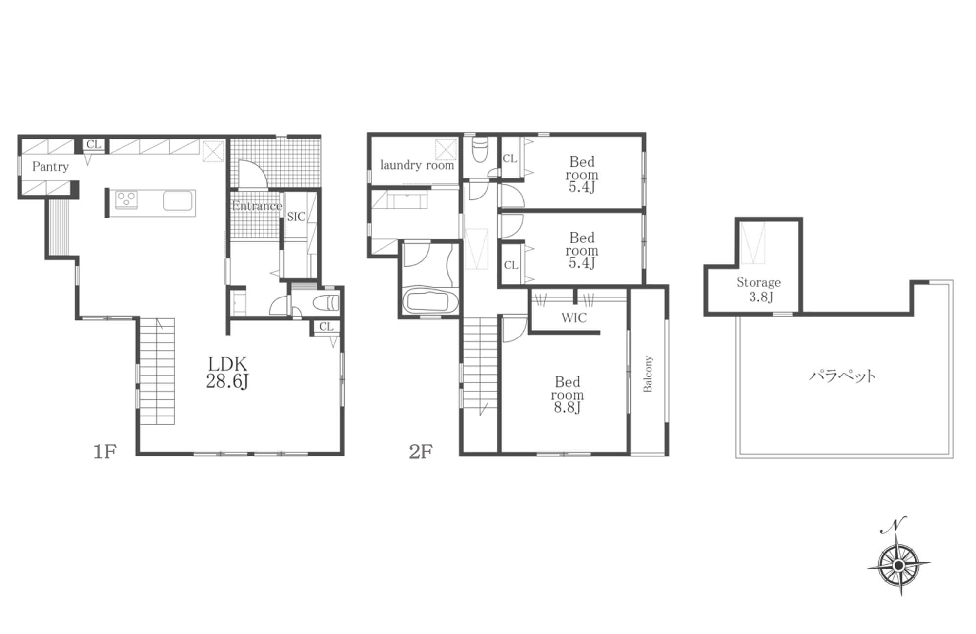
| 間取り | 3LDK |
| 延べ床面積 | 135.57㎡ |
-

間取り図
◎敷地面積/167.00㎡(約50.51坪)
◎延床面積/135.57㎡(約41坪) -

玄関には土間から続くシューズインクローゼット、洗濯機から取り出してその場ですぐに干せるランドリールーム(ドライピット)、キッチン奥にはパントリールーム、マスターベッドルームにはウォークインクローゼット
実際にご覧いただきご体感ください。 -

-





