横浜市青葉区桜台【住宅展示場・モデルハウス】
- ウッドデッキ
- 神奈川県
- 横浜市

————————————————————–
当モデルハウスでの見学会は終了いたしました。
多数のご来場、誠にありがとうございました。
————————————————————–
横浜市青葉区桜台[住宅展示場・モデルハウス]
閑静な住宅街の中につくられたプリンシパルホームのモデルハウス「まちなかギャラリー」のご紹介です。
延べ床面積160.88㎡、片付けやすい帰宅動線とデザイン性にこだわった暮らしの空間、
風・光・空を体感できるPremium Houseをご体感ください。
《注文住宅》の参考にプリンシパルホームの建物を是非ご覧ください。
| 「街中ギャラリー」住宅展示場名 | 横浜市青葉区桜台【住宅展示場・モデルハウス】 |
|---|---|
| 開催時間 | 当モデルハウスでの見学会は終了いたしました。 多数のご来場、誠にありがとうございました。 |
| 住所 | 神奈川県横浜市青葉区桜台(地図で確認する↓) |
| 交通アクセス | 【本社にお越しいただく場合】 ・町田本社(住所:東京都町田市金森3丁目23-1)にお越し頂ければ送迎致します。 (事前にお電話下さい。0120-021-541) |
| 駐車場 | 有り |
| 来場・見学費用 | 無料 |
| 家づくり相談 | 可 |
| 住宅ローン相談 | 可 |
| 土地探し相談 | 可 |
| 備考1 | 建ぺい率50% 容積率80% |
| 工法 | 木造2階建て |
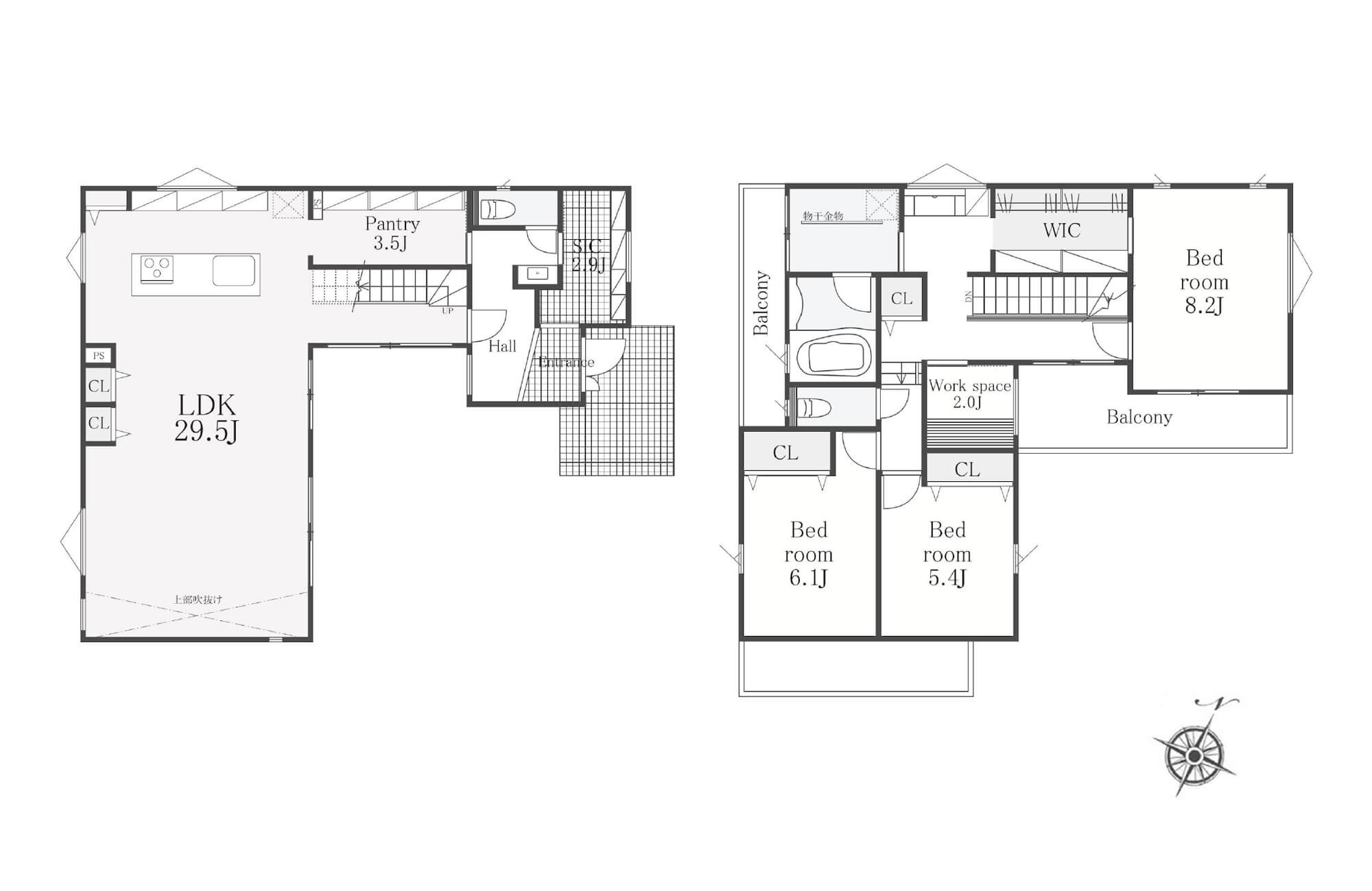
| 間取り | 3LDK |
| 延べ床面積 | 160.88㎡(地下車庫部分:17.54含む) |
-

間取り図
◎敷地面積/180.13㎡(約54.48坪)
◎延床面積/160.88㎡(約48.66坪)(地下車庫部分:17.54㎡含む) -

リビングから続く広々開放的なウッドデッキ
-

ハイ天井と吹き抜けから光を集めるスタイリッシュな空間設計
大容量パントリーには日用品のストックが整理しやすい!
-

2階のバルコニーでは夜風を感じながらくつろげます。主寝室にはウォークインクローゼットがあり、そのまま洗面室へとダイレクトに繋がっており、工夫された生活動線が暮らしを豊かにしてくれます。
注文住宅をよりリアルにイメージしやすいように「まちなかギャラリー」としてご用意しています。ぜひ一度ご体感ください。




